Luogo: Melzo
Periodo: Luglio 2025 – Ottobre2025
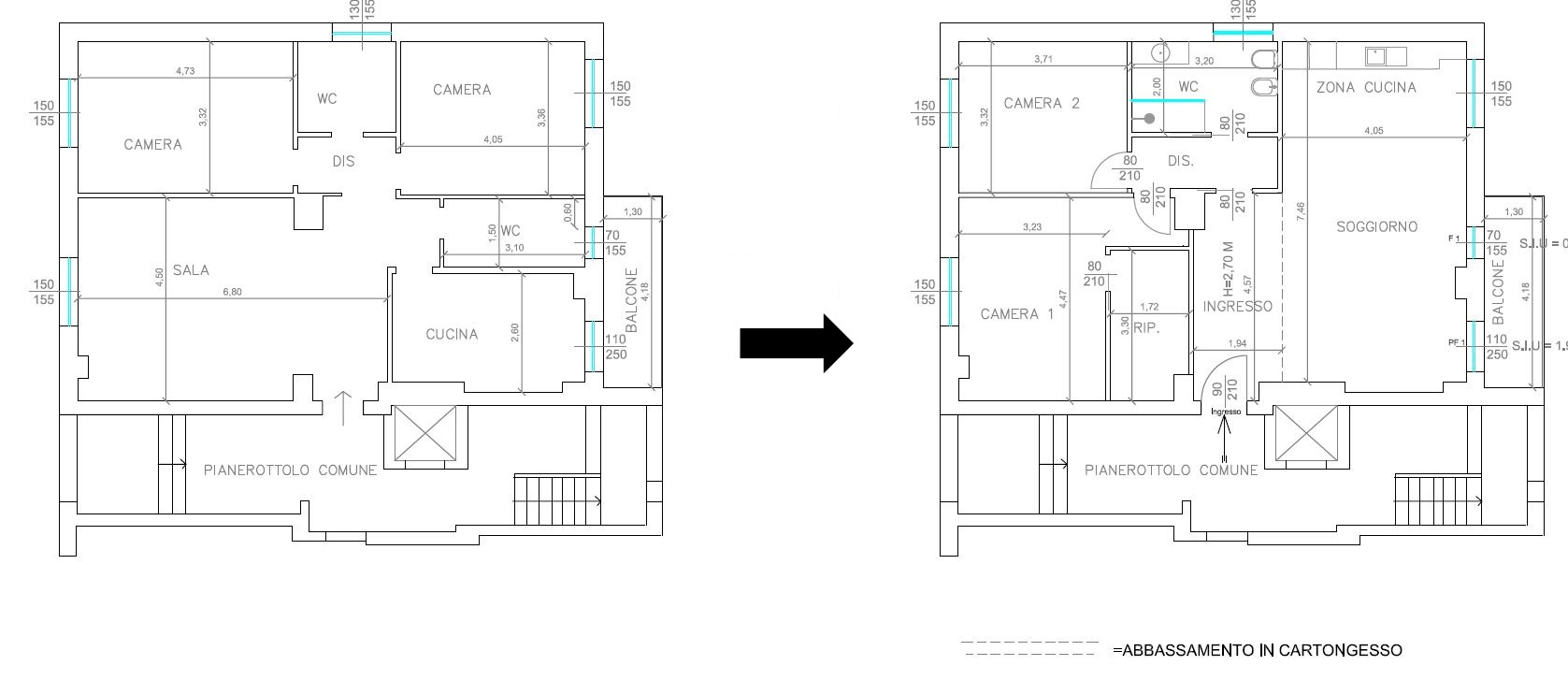
Ristrutturazione appartamento
Il cliente si è affidato a noi per la ristrutturazione e la riconfigurazione degli interni di questo appartamento degli anni 80.
Il punto centrale del progetto è la creazione di una cucina open space affacciata sul soggiorno, un ambiente unico che favorisce convivialità e vivibilità quotidiana. Le demolizioni mirate e una nuova configurazione degli impianti hanno permesso di realizzare un unico grande locale arioso e luminoso.
Un’altra richiesta fondamentale del cliente era un unico bagno più grande, capace di ospitare comodamente sanitari moderni, una doccia spaziosa e una zona dedicata alla lavanderia. Attraverso un’attenta riorganizzazione delle superfici, siamo riusciti ad ampliare l’ambiente accontentando i gusti estetici del cliente.
Infine, nella camera da letto principale abbiamo realizzato una cabina armadio su misura, ottimizzando ogni centimetro disponibile. Grazie a un sistema di pareti leggere in cartongesso e soluzioni di arredo personalizzate, l’ambiente risulta ordinato, funzionale e perfettamente integrato con il resto della zona notte.
Il risultato finale è un appartamento rinnovato e confortevole, in cui ogni scelta progettuale è stata pensata per soddisfare le esigenze del cliente e valorizzare al massimo gli spazi.
Opere eseguite:
- Rifacimento impianti bagno e cucina
- Rifacimento impianto elettrico
- Nuovo impianto d’aria condizionata
- Nuove pareti divisorie e controsoffitti in cartongesso
- Nuova pavimentazione e rivestimenti in grès porcellanato
- Rifacimento completo del bagno
Planimetria






















